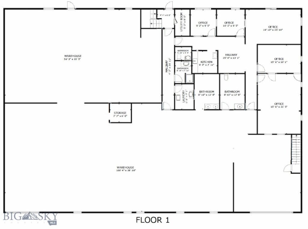
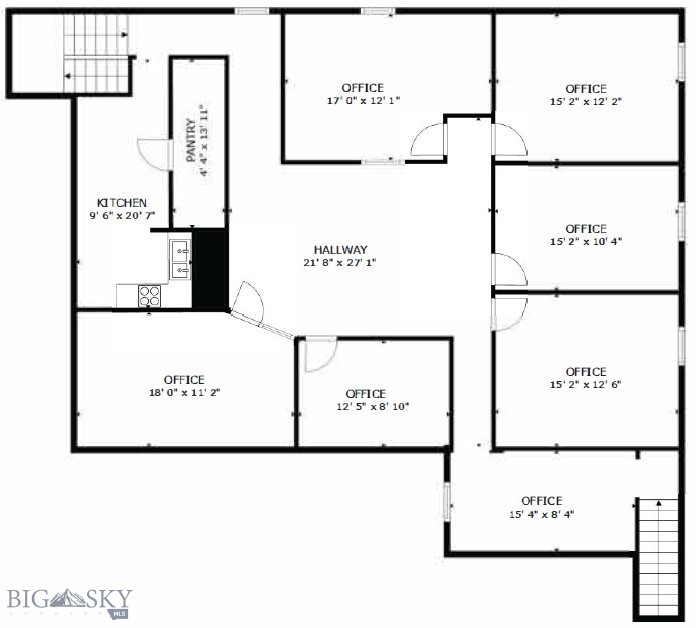
Large warehouse/office building in convenient location just off Griffin Drive. The building layout is a combination +/-6,000 SF of warehouse space on the main level, primarily open with high ceilings, a grade level overhead door, as well as a loading dock, and several man doors. There is also +/-2,000 SF of office on the main level. The office space has a showroom area, three offices, a conference room and a kitchenette. The second floor is an additional +/-2,000 SF of nice office space with six offices, a conference room and kitchenette. Due to the location of entrances, restrooms, and layout this building could be easily demised into a multitude of different options beyond one end user. The .704 acre lot allows for extra space for truck parking, yard space, etc. Worth taking a look at this property to envision the possibilities! Keywords: 2134 Industrial Drive, Bozeman MT 59715, Bozeman, MT, Bozeman City Limits, 1NE – Boz N of Main/E of 19th, Gallatin County, CommercialSale, Building,Commercial, Luxury, Luxury Home MLS# 408964
Virtual Tour: https://my.matterport.com/show/?m=E2T5gPocDb7
This property located at 2134 Industrial Drive, Bozeman MT 59715 with the MLS Number 408964 is currently listed for $2,475,000 and was listed on 2026-03-02.
Property Area: 1NE - Boz N of Main/E of 19th
-
SQ FEET
9876
-
ACRES
0.704
-
LIST DATE
2026-03-02
- Price: $2,475,000
- Price/SqFt: $251
- Acres: 0.704
- Status: Active
- Type: Building,Commercial
- Search Type: CommercialSale
- Category: Building,Commercial
- MLS #: 408964
- City: Bozeman
- Zip: 59715
- Property Area: 1NE - Boz N of Main/E of 19th
- Square Feet: 9876
- Heating/Cooling:
- Listing Date: 2026-03-02
- Listing Agent: Tom Starner of Starner Commercial Real Estate
- Search Terms: 2134 Industrial Drive, Bozeman MT 59715, Bozeman, MT, Bozeman City Limits, 1NE - Boz N of Main/E of 19th, Gallatin County, CommercialSale, Building,Commercial, Luxury, Luxury Home




















