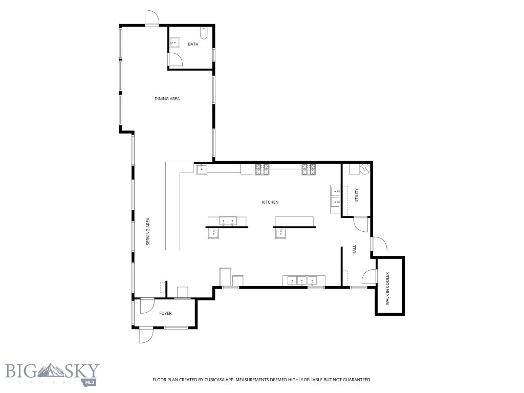
Excellent opportunity to own a well-located commercial building in one of Bozeman’s growing areas! Built in 2013, this 1,641± sq ft building sits on a corner lot with great visibility and easy access along a well-traveled street. Currently operating as a restaurant, the space features indoor dining, areas for outdoor seating, and plenty of parking for customers and staff alike. Most of the FF&E conveys with the sale. The property is zoned B2, offering flexibility for a variety of commercial uses and allowing room for expansion on the lot. Located in an area surrounded by established and growing neighborhoods — where people are always looking for a great place to eat — this is an ideal location for your next business venture or investment. Keywords: 3709 Baxter, Bozeman MT 59718, Bozeman, MT, Bozeman City Limits, 1NW – Boz N of Main/W of 19th, Gallatin County, Subdivision, CommercialSale, Building, Commercial MLS# 406486
This property located at 3709 Baxter, Bozeman MT 59718 with the MLS Number 406486 is currently listed for $1,100,000 and was listed on 2025-10-14.
Property Area: 1NW - Boz N of Main/W of 19th
-
SQ FEET
1641
-
YEAR BUILT
2013
-
ACRES
0.255
-
LIST DATE
2025-10-14
- Price: $1,100,000
- Price/SqFt: $670
- Acres: 0.255
- Status: Active
- Type: Building, Commercial
- Search Type: CommercialSale
- Category: Building, Commercial
- MLS #: 406486
- City: Bozeman
- Zip: 59718
- Property Area: 1NW - Boz N of Main/W of 19th
- Year Built: 2013
- Square Feet: 1641
- Heating/Cooling: ForcedAir CentralAir
- HOA Pay Period: Quarterly
- HOA Amount: 220
- Listing Date: 2025-10-14
- Listing Agent: Erica Heinrich of Keller Williams Montana Realty
- Search Terms: 3709 Baxter, Bozeman MT 59718, Bozeman, MT, Bozeman City Limits, 1NW - Boz N of Main/W of 19th, Gallatin County, Subdivision, CommercialSale, Building, Commercial























