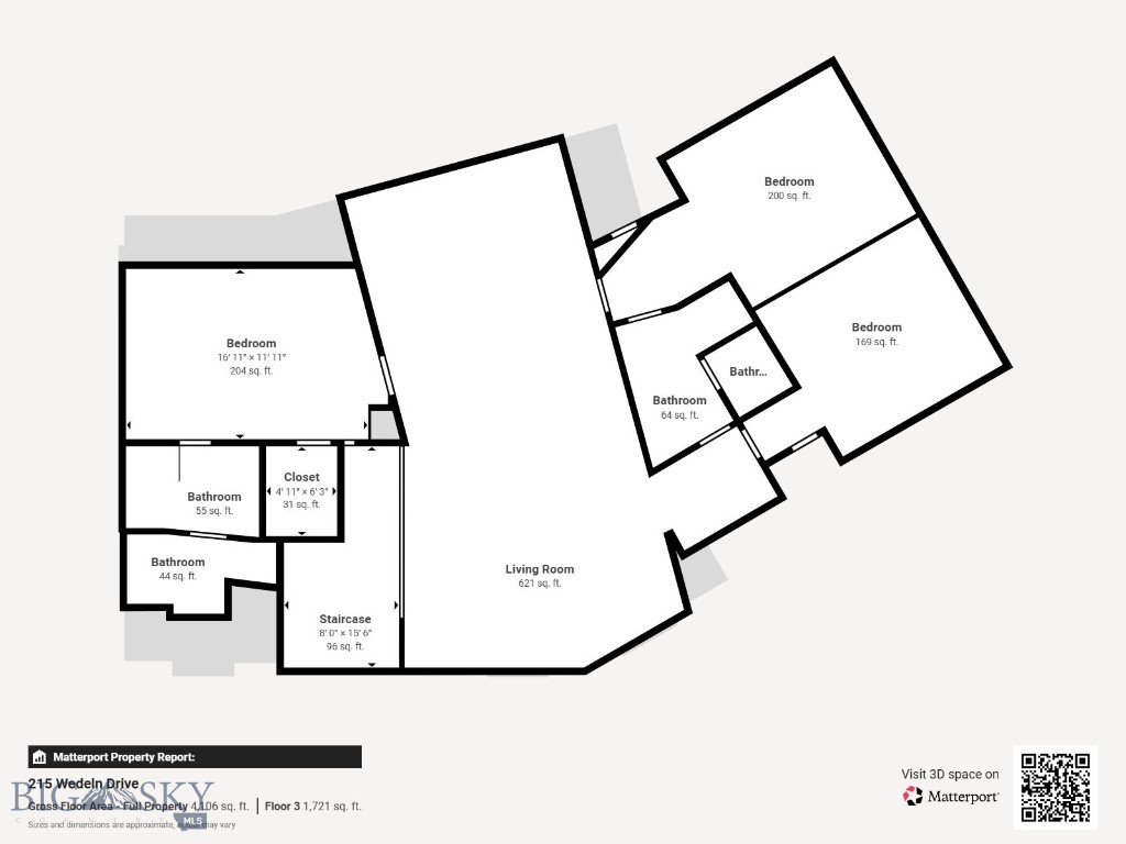
Ski-in, ski-out living meets modern Montana luxury. This custom 4,135 sq. ft. home, built in 2020, offers direct access to Bridger Bowl Ski Area and Crosscut Mountain Sports Center, with hiking, fishing, and year-round recreation right at your doorstep. Surrounded by open space with only one shared boundary, the property enjoys unmatched privacy and breathtaking mountain views. Both covered decks have ski lifts where you can relax and enjoy the views. It makes a great vacation home or short-term rental. Inside, expansive windows and vaulted ceilings flood the open floor plan with natural light. The home features 4 bedrooms, 3.5 bathrooms with tiled showers, reclaimed fir and maple hardwood floors, exposed post-and-beam details, and radiant floor heating with individually zoned controls. A gourmet kitchen with a walk-in pantry, double-oven gas range, and smoked oak cabinetry with quartz countertops anchors the main level, while the living room’s cozy wood stove and a covered cedar deck invite relaxation. Upstairs, a spacious family room with a wet bar opens to another cedar deck, perfect for entertaining. Two guest bedrooms and a full bath complement the luxurious master suite, which includes a walk-in closet, spa-like bath with soaking tub, and separate tiled shower. The newly finished walkout basement with 9′ ceilings and lots of windows includes a family room, kitchen w/pantry that can accommodate a freezer, bedroom, bathroom, and covered patio, which is prepped for a hot tub. The oversized 2-car garage with 682 sq. ft. is heated and features a brand-new dog bath and an oversized door, which accommodates mountain gear with ease. Just 15 miles from Bozeman’s restaurants, shops, and cultural events, 25 miles from the airport, and within easy reach of Yellowstone National Park, this home blends outdoor adventure with refined comfort. Keywords: 215 Wedeln Drive, Bozeman MT 59715, Bozeman, MT, Greater Bozeman Area, 2B – Boz Area Bridger Cyn, Gallatin County, Bridger Pines Subdivision, Residential, Single Family, Luxury, Luxury Home, Custom, Ski In Ski Out, Ski-In Ski-Out, Ski-In/Ski-Out Access, Hiking, Fish, Fishing, Fly Fishing, Fly Fishing Property, Privacy, Private Setting MLS# 405645
Virtual Tour: https://my.matterport.com/show/?m=gZ2RaPExTSM
This property located at 215 Wedeln Drive, Bozeman MT 59715 with the MLS Number 405645 is currently listed for $2,350,000 and was listed on 2025-09-07.
Property Area: 2B - Boz Area Bridger Cyn Subdivision: Bridger Pines
-
SQ FEET
4218
-
BEDROOMS
4
-
BATHROOMS
4
-
YEAR BUILT
2020
-
LIST DATE
2025-09-07
- Price: $2,350,000
- Price/SqFt: $557
- Status: Contingent
- Type: SingleFamilyResidence
- Search Type: Residential
- Category: SingleFamilyResidence
- MLS #: 405645
- City: Bozeman
- Zip: 59715
- Property Area: 2B - Boz Area Bridger Cyn
- Subdivision: Bridger Pines
- Year Built: 2020
- Beds: 4
- Baths: 4
- Square Feet: 4218
- Water Features: None
- Appliances: Dryer, Dishwasher, Microwave, Range, Refrigerator, Washer
- Heating/Cooling: Propane RadiantFloor CeilingFans
- Patio/Deck: Balcony,Covered,Deck,Patio
- View: Mountains, TreesWoods
- Amenities/Safety Features: HeatDetector,SmokeDetectors
- Levels: Two
- HOA Pay Period: Annually
- HOA Amount: 1000
- HOA Includes: SnowRemoval, Trash
- Style: Custom
- Basement: Bathroom,Bedroom,EgressWindows,Kitchen,RecFamilyArea,WalkOutAccess
- Utility Services: ElectricityAvailable, Propane, SewerAvailable, WaterAvailable
- Builder / Architect: Ross Peak Construction
- Parking Features: Attached,Garage,GarageDoorOpener
- Security Features: HeatDetector,SmokeDetectors
- Fireplace Features: WoodBurningStove
- Listing Date: 2025-09-07
- Listing Agent: Shirley Van Osdol of eXp Realty, LLC
- Search Terms: 215 Wedeln Drive, Bozeman MT 59715, Bozeman, MT, Greater Bozeman Area, 2B - Boz Area Bridger Cyn, Gallatin County, Bridger Pines Subdivision, Residential, Single Family, Luxury, Luxury Home, Custom, Ski In Ski Out, Ski-In Ski-Out, Ski-In/Ski-Out Access, Hiking, Fish, Fishing, Fly Fishing, Fly Fishing Property, Privacy, Private Setting
- 3D Tour: https://media.listivo.com/sites/rxemzqq/unbranded















































































