Bruce Industrial Park Commercial Property Opportunity!
Property Overview
Located in Bruce Industrial Park, Belgrade, MT, this property offers a generous 1.14 acres zoned for industrial use. The I (industrial) zoning permits a broad range of activities, including cannabis cultivation, veterinary services, warehouse operations, and storage facilities, among other possibilities. A full zoning description is available for review.
Utilities and Infrastructure
Engineering plans for both a well and septic system have already been completed, streamlining development processes. The property is currently approved for one living unit, which includes well and septic services, in addition to the various uses allowed under City of Belgrade zoning regulations.
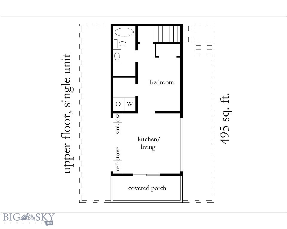
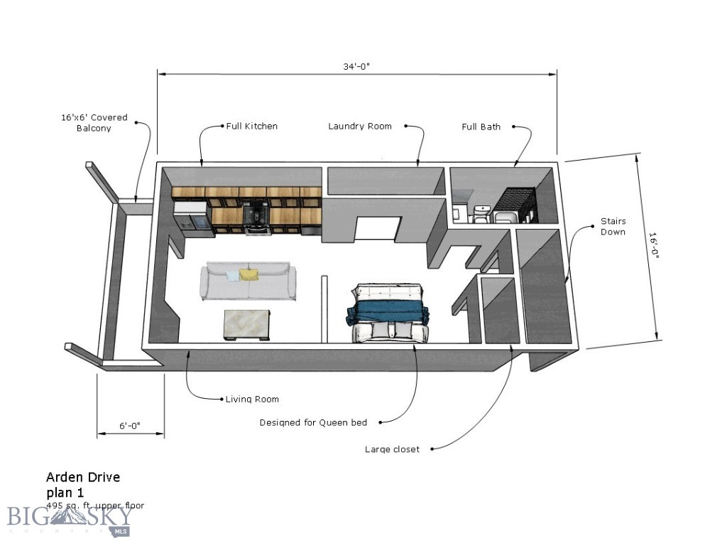
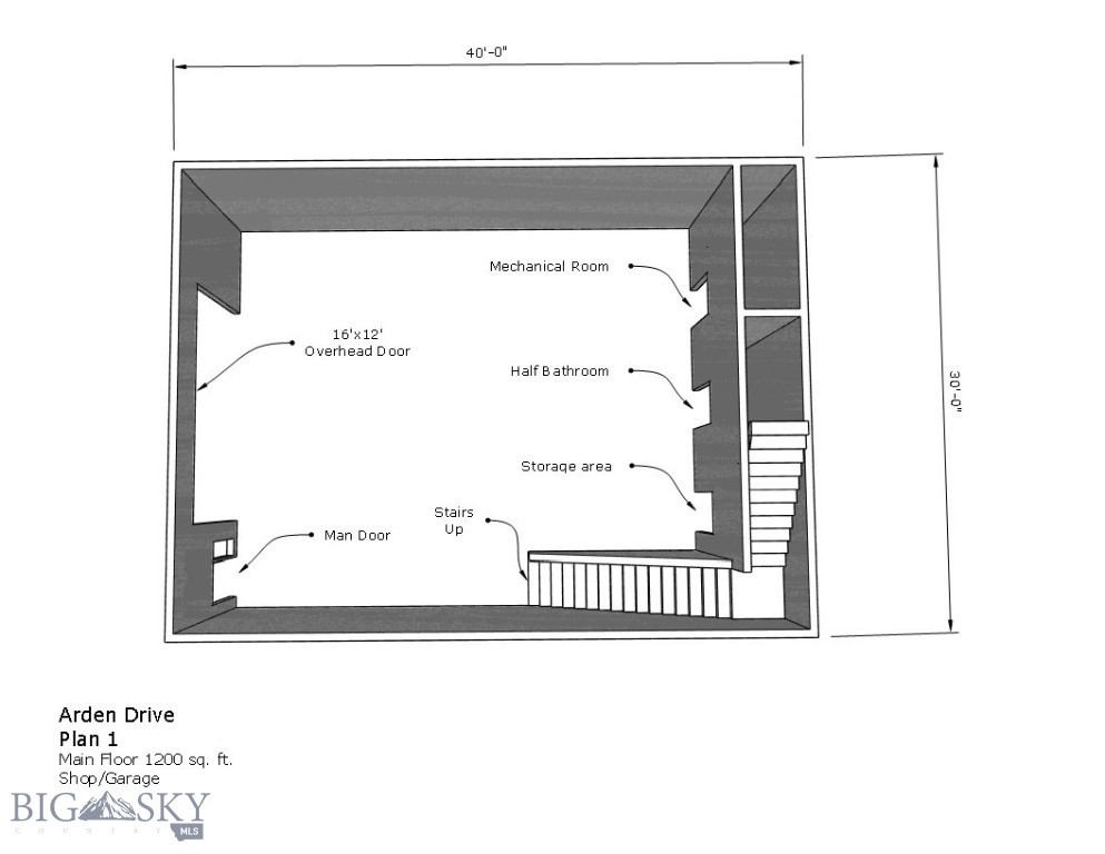
Development Potential
This commercial lot presents significant development opportunities within Belgrade’s Bruce Industrial Park. Preliminary drawings are available for prospective buyers, or you may bring your own concepts to tailor the property to your needs. With over an acre of land, there is ample room for a variety of ideas and possibilities.
Adjoining Property Availability
An adjoining acre is also for sale by the same owner, offering the flexibility to develop one or both lots to suit your objectives. The potential to expand or customize your investment is truly limitless with these available parcels. Adjoining property is MLS# 407277 Keywords: Lot 2 Bruce industrial Arden Drive, Belgrade MT 59714, Belgrade, MT, Belgrade, 3N – Belgrade Area N of I90, Gallatin County, Other Subdivision, Land, Commercial, UnimprovedLand MLS# 407276
Virtual Tour: www.montanalandbuyer.com
This property located at Lot 2 Bruce industrial Arden Drive, Belgrade MT 59714 with the MLS Number 407276 is currently listed for $599,000 and was listed on 2025-11-24.
Property Area: 3N - Belgrade Area N of I90 Subdivision: Other
-
ACRES
1.14
-
LIST DATE
2025-11-24
- Price: $599,000
- Acres: 1.14
- Status: Active
- Type: Commercial, UnimprovedLand
- Search Type: Land
- Category: Commercial, UnimprovedLand
- MLS #: 407276
- City: Belgrade
- Zip: 59714
- Property Area: 3N - Belgrade Area N of I90
- Subdivision: Other
- Water Features: None
- Heating/Cooling:
- HOA Pay Period: Annually
- HOA Amount: 700
- Utility Services: ElectricityAvailable, FiberOpticAvailable, NaturalGasAvailable
- Listing Date: 2025-11-24
- Listing Agent: Justin Joyner of Montana Land Buyer Realty
- Search Terms: Lot 2 Bruce industrial Arden Drive, Belgrade MT 59714, Belgrade, MT, Belgrade, 3N - Belgrade Area N of I90, Gallatin County, Other Subdivision, Land, Commercial, UnimprovedLand

















