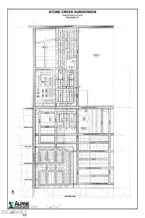
Stone Creek Subdivision is an entitled 170-acre master-planned community located along the future extensions of Collins Road and Weaver Road in Belgrade, Montana. Positioned in one of the Gallatin Valley’s most rapidly growing corridors, Stone Creek offers a well-balanced mix of residential uses with a total of 1,273 units, including 950 multifamily apartments, 217 single-family homes, 104 townhomes, and 2 commercial pads. The layout is designed to serve a broad range of housing needs while incorporating neighborhood-scale commercial space to support future residents. Located just minutes from downtown Belgrade and within a short drive to Bozeman, the subdivision offers convenient access to Interstate 90 and Bozeman Yellowstone International Airport. The property lies within the Belgrade School District, with multiple schools; such as Ridge View Elementary and Belgrade High School.. Everyday amenities such as grocery stores, restaurants, and healthcare services are readily available along Jackrabbit Lane, and regional retail centers in Bozeman are just 15 minutes away. Stone Creek is also well-positioned for outdoor and community-oriented living. The area provides access to parks, trails, and expansive recreation opportunities including fishing along the Gallatin River, hiking in the Bridger Mountains, and skiing within an hour’s drive. With infrastructure alignment along the Collins and Weaver road extensions and entitlements in place, Stone Creek Subdivision is a rare opportunity to develop at scale in a thriving Montana market. Keywords: TBD Weaver Ln, Belgrade MT 59714, Belgrade, MT, 3N – Belgrade Area N of I90, Gallatin County, Other Subdivision, Land, Commercial,UnimprovedLand, Luxury, Luxury Home, Ski, Skiing, Hiking, Fish, Fishing, Fly Fishing, Fly Fishing Property MLS# 404204
This property located at TBD Weaver Ln, Belgrade MT 59714 with the MLS Number 404204 is currently listed for $25,000,000 and was listed on 2025-07-21.
Property Area: 3N - Belgrade Area N of I90 Subdivision: Other
-
ACRES
170.802
-
LIST DATE
2025-07-21
- Price: $25,000,000
- Acres: 170.802
- Status: Active
- Type: Commercial,UnimprovedLand
- Search Type: Land
- Category: Commercial,UnimprovedLand
- MLS #: 404204
- City: Belgrade
- Zip: 59714
- Property Area: 3N - Belgrade Area N of I90
- Subdivision: Other
- Heating/Cooling:
- Utility Services: ElectricityAvailable, NaturalGasAvailable, SewerAvailable, WaterAvailable
- Listing Date: 2025-07-21
- Listing Agent: Ryan Thompson of Western Ranch Brokers LLC
- Search Terms: TBD Weaver Ln, Belgrade MT 59714, Belgrade, MT, 3N - Belgrade Area N of I90, Gallatin County, Other Subdivision, Land, Commercial,UnimprovedLand, Luxury, Luxury Home, Ski, Skiing, Hiking, Fish, Fishing, Fly Fishing, Fly Fishing Property













